Solicitan que el Concejo Municipal disponga de una oficina en planta baja del Palacio Municipal
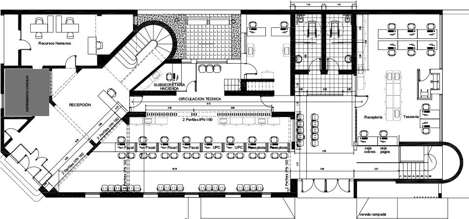
La propuesta, la cual fue girada a Comisión para su análisis, lleva como anexo un plano del edificio público, donde se especifica como lugar solicitado una oficina ubicada en el costado izquierdo de la puerta principal de entrada, ingresando por la esquina de Av. Belgrano y 25 de Mayo.
El Concejo Municipal de Sunchales realizó una Sesión Extraordinaria en la mañana del lunes 18 de enero, con la asistencia de todos sus integrantes.
Como parte de los proyectos de Ordenanza presentados aparece la solicitud de que se disponga un espacio en la planta baja del Palacio Municipal, para el funcionamiento de una oficina del Cuerpo Legislativo, con accesibilidad plena y por lo tanto sin barreras arquitectónicas.
La iniciativa, la cual fue girada a Comisión para su análisis, pertenece a la concejala María Alejandra Bugnon de Porporatto y el edil Horacio Bertoglio, con la adhesión del concejal Oscar Trinchieri.
Se fija como fecha de acceso al espacio desde el 1 de marzo del presente año y hasta que las dependencias del Concejo se trasladen a una ubicación accesible a todo público. Asimismo, el proyecto de Ordenanza lleva como anexo un plano de la planta baja del Palacio Municipal, donde se señala como lugar solicitado una oficina ubicada en el costado izquierdo de la puerta principal de entrada al edificio, ingresando por la esquina de Av. Belgrano y 25 de Mayo.
“El Concejo ha tratado por diferentes canales y medios de garantizar su apertura y puesta en conocimiento por parte de la ciudadanía, para dar la necesaria publicidad de los actos de Gobierno y la proximidad con la problemática que viven vecinas y vecinos. Es por ello que entendemos que un pequeño ámbito, suficientemente accesible como el propuesto en la planta baja del Palacio Municipal, podría propiciar que al menos todas las personas con movilidad reducida puedan gozar de las adecuadas condiciones de seguridad y autonomía como elemento primordial para el desarrollo, sin restricciones derivadas del ámbito físico urbano arquitectónico, para el acceso a sus representantes públicos”, se expresa como parte de los fundamentos de la iniciativa.

Te puede interesar
Sumate a "Ojos en Alerta"
La Agencia Municipal de Seguridad de Sunchales convoca a todos los vecinos y vecinas a formar parte de una herramienta de participación comunitaria que permite colaborar de manera activa en la prevención del delito y en el cuidado de nuestra ciudad.
La Cooperativa de Agua Potable de Sunchales celebra el 68º Aniversario
Nació el 11 de noviembre de 1957 bajo la denominación de Cooperativa Limitada de Electricidad y Servicios Anexos de Sunchales, proveyendo el servicio de energía eléctrica destinada al servicio particular y público, y otros servicios como cámara frigorífica y aguas corrientes.
Este viernes 7, asueto por el Día del Trabajador Municipal
Por esta razón, no se brindará atención al público en todas las dependencias municipales. La recolección de residuos nocturna se realizará con total normalidad.
Sunchalense estafado en Rafaela luego de pactar una supuesta sesión de masajes
En la mañana del 4 de noviembre, un hombre de 60 años, realizó el pago anticipado de la sesión por un monto de $25.000. Pero la masajista recibió el dinero en forma presencial, le solicitó unos minutos de espera y nunca más regresó.
Nueva muestra fotográfica se exhibe en el Recinto del Concejo Municipal
En la sala de sesiones, se expone las imágenes ganadoras de la cuarta edición del concurso fotográfico organizado por el Cuerpo Legislativo de Rafaela.
El Departamento Ejecutivo Municipal avanzó en la reorganización de su equipo de trabajo
La medida no implica nuevas incorporaciones sino una reasignación de funciones. La Agencia Municipal de Seguridad y la Subsecretaría de Hacienda y Finanzas dependerán directamente del Intendente Pablo Pinotti. María Eugenia Gamero asumirá como Secretaria de Producción y Empleo.

